Description
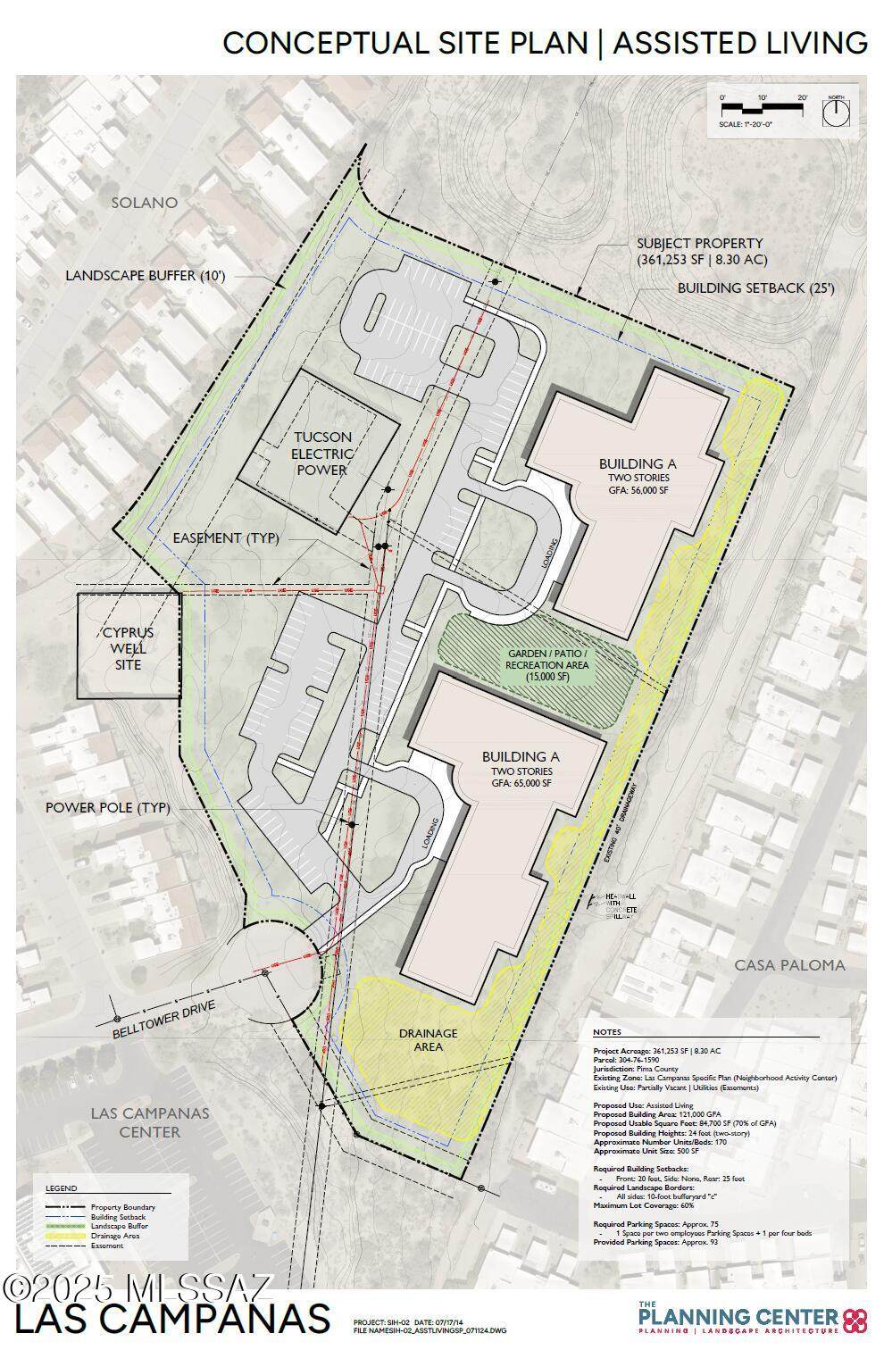
Incredible opportunity! Entitled for a ''170-BED ASSISTED LIVING FACILITY'' Check the Concept plans. This can be so many things. Do not wait to long to own this incredible land opportunity that can draw so many high use capabilities. 8+ Acres and zoned SP- Located in the heart of Green Valley, AZ Perfect for a 30 Lot subdivision, a large Church, activity center, medical offices, or a large planned assisted living center. Tons of concepts are able to be done. OWNER FINANCING available. Contact your trusted agent today. Seller is a Licensed Real Estate Agent in Arizona.
-
0BEDS
-
8.29ACRES
-
0BATHS
-
01/2 BATHS
-
100SQFT
-
$11,500$/SQFT
School Ratings & Info
Description
Incredible opportunity! Entitled for a ''170-BED ASSISTED LIVING FACILITY'' Check the Concept plans. This can be so many things. Do not wait to long to own this incredible land opportunity that can draw so many high use capabilities. 8+ Acres and zoned SP- Located in the heart of Green Valley, AZ Perfect for a 30 Lot subdivision, a large Church, activity center, medical offices, or a large planned assisted living center. Tons of concepts are able to be done. OWNER FINANCING available. Contact your trusted agent today. Seller is a Licensed Real Estate Agent in Arizona.
Listing information Copyright 2026 MLS of Southern Arizona. All Rights Reserved.
Data last updated: 2026-01-17T00:07:05.333.
The data relating to real estate listings on this website comes in part from the Internet Data Exchange (IDX) program of Multiple Listing Service of Southern Arizona. IDX information is provided exclusively for consumers' personal, non-commercial use and may not be used for any purpose other than to identify prospective properties consumers may be interested in purchasing. Listings provided by brokerages other than Tucson Property Executives are identified with the MLSSAZ IDX Logo. All Information Is Deemed Reliable But Is Not Guaranteed Accurate.
